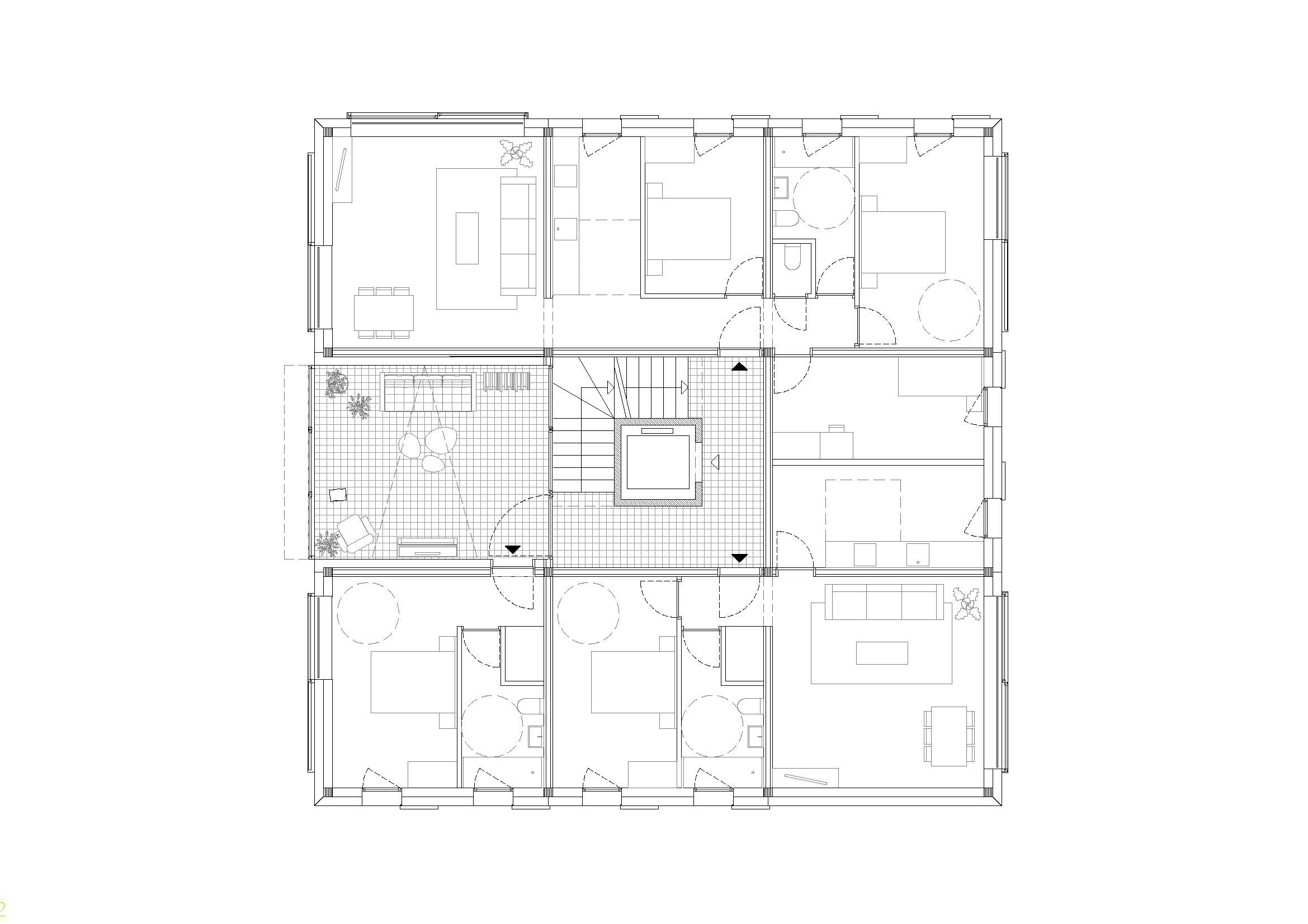
Location
Pontresina, CH
Client
Pontresina Municipality
Program
Housing
Area
848 m²
Cost
4,7M €
Status
Competition
Team
Nicolas Gustin
Miguel Serrano
Przemek Witkowski
PILOT PROJECT
DATA